80% des non-conformités électriques viennent de schémas obsolètes
Nous réalisons vos reprises de schémas en 72H maximum
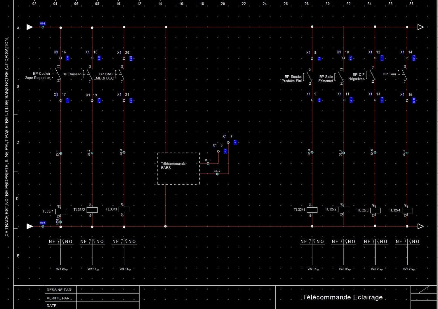
L'importance de reprendre vos schémas

✔️ Mettre à jour régulièrement vos schémas électriques est essentiel pour garantir la sécurité, la conformité et l'efficacité de votre installation. Cela permet de prévenir les risques d'accidents, de faciliter la maintenance et les dépannages.
Et pourtant, ce n'est pas votre priorité !
🧯 20% des incendies d’origine électrique en milieu tertiaire/industriel sont dus à des modifications non documentées ou à des installations non conformes.


Optimisation de l'efficacité
✔️ Si vous ne le faites pas pour vous, faites-le pour votre technicien.
Peut-être qu’un jour, un responsable frustré de la perte de son poste partira avec les modifications ? Pas de panique : nous serons là pour vous les restituer, car vos schémas seront stockés sur nos serveurs.

Économie de temps et d'argent
✔️ Des schémas électriques précis et à jour facilitent la compréhension de votre installation, ce qui permet d’identifier rapidement les dysfonctionnements.
✔️ Mettre à jour un schéma électrique prend du temps et c'est un travail fastidieux à déchiffrer... Alors, pourquoi attendre ?

Fini les schémas obsolètes.
Fini les galères.
Vos schémas à jour en 3 étapes simples.

1-Identification du besoin
Transmettez-nous une photo de votre tableau électrique, avec ou sans plastron, pour que nous comprenions bien le projet de mise à jour.

2-Transmission des éléments
Envoyez-nous vos relevés manuscrits ou les modifications à apporter sur l’ancien schéma existant.

3-Production
Nous traduisons tous ces éléments en un schéma clair pour faciliter vos interventions futures.

En utilisant notre bureau d’études, tous vos schémas sont stockés sur un drive sécurisé (Proton Drive), accessible 24 h/24 – 7 j/7.
Externalisez la reprise de vos schémas,
concentrez-vous sur votre savoir-faire.
Nos forfaits HT – Mises à jour de schémas électriques tertiaire & industrie
En cas d’intervention ultérieure sur des tableaux créés par Retz’Etude, nous avons déjà vos schémas conservés : nous intervenons plus rapidement.
Formule Tableau
1 mises à jour
pour Tableau 800x600
270€ ht
Formule Armoire
1 Mise à jour pour armoire, jusqu'à 2 portes
690€ ht
Ne nous croyez pas, croyez-les

“Avant, on avait des schémas papier illisibles et jamais à jour. Chaque audit devenait un stress. Depuis qu’on travail avec Retz’Étude, on a récupéré des plans clairs, numériques et surtout à jour. Gagner en réactivité, c’est gagner en sécurité.”
François M
Responsable maintenance – Groupe agroalimentaire

“Je galérais à mettre à jour les plans moi-même entre deux chantiers. Maintenant, j’envoie une photo et en 72h j’ai un plan propre, prêt à livrer au client. Un vrai gain de temps et moins de stress.”
Nicolas R
électricien – Loire-Atlantique

“On gère plusieurs bâtiments avec des installations différentes. Centraliser tous les schémas sur un drive sécurisé, c’est devenu un vrai confort. En cas d’intervention, tout est accessible, clair et fiable."
Claire D
gestionnaire de parc immobilier – bureaux et ERP
formule découverte
Remplissez le formulaire ci-dessous
Je HAIS le spam. Votre email ne sera jamais partagée
Formule Armoire
Je HAIS le spam. Votre email ne sera jamais partagée